PROBIM.ПРОЕКТ

Комплексные проектные решения с применением BIM технологий.

Преимущества
  • Проектирование всех разделов в одном файле
  • Точный, автоматизированный расчет общестроительных и прочих материалов
  • Высокая точность и наглядность рабочей документации

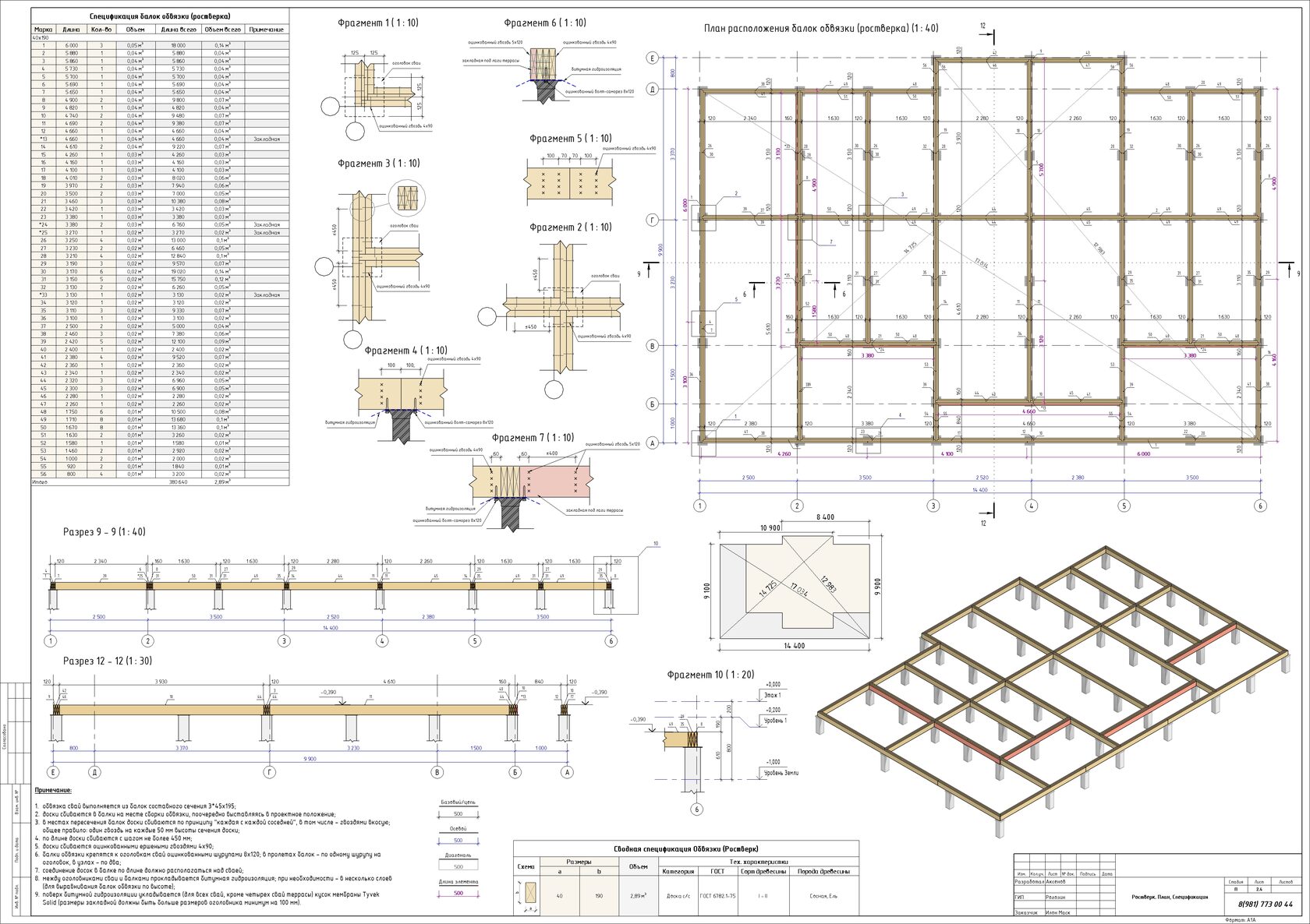
Подробная спецификация для раздела КД (Конструкции Деревянные)

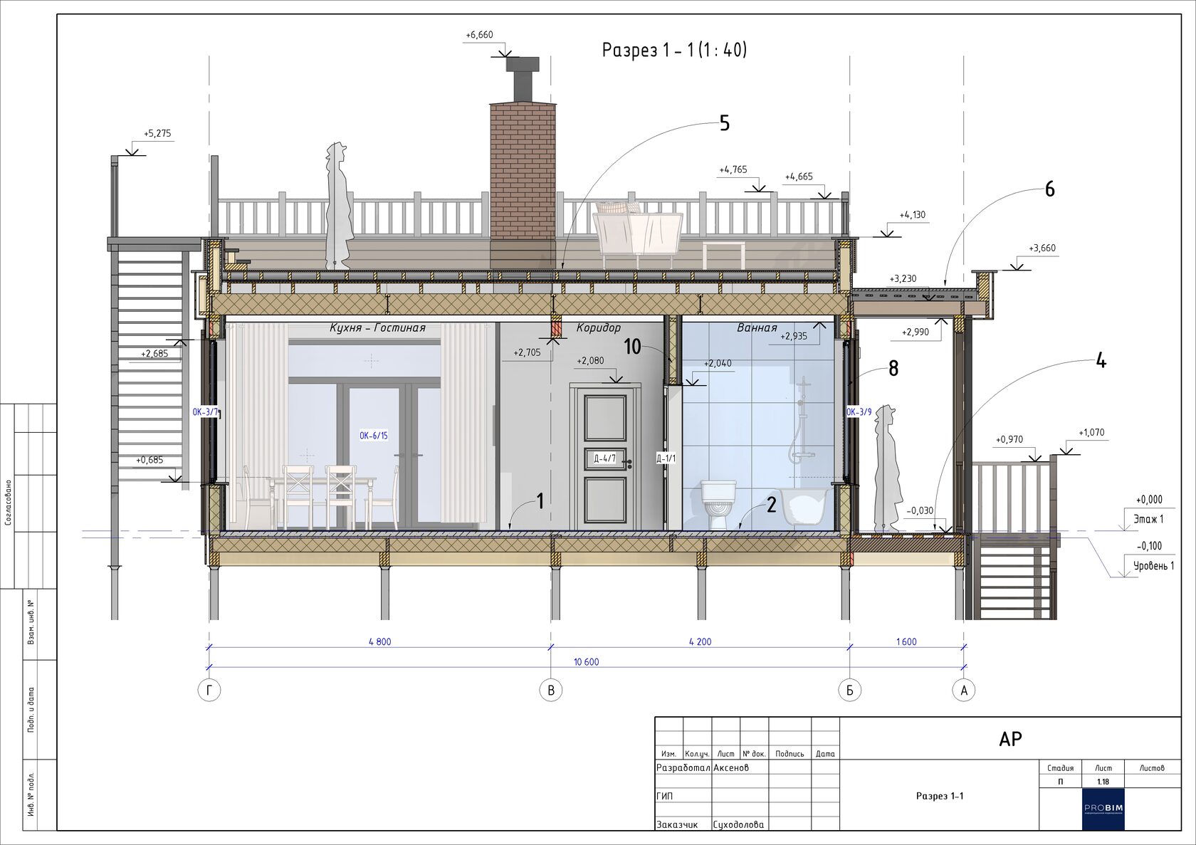
Архитектурно-Строительная модель

Конструктивная модель

Инженерные системы

Создание Коммерческого предложения (КП)

Подсчет стоимости отдельно по системам

Ищете сильную команду?
Оцените наши сильные стороны!
КОМПЛЕКСТНЫЙ ПОДХОД

Все разделы проекта Вашего будущего дома от эскизного до инженерного мы выполняем в одном BIM-файле. Это практически сводит к нулю вероятность ошибок из-за несостыковок, возникающих при параллельной работе разных специалистов в разных файлах и экономит массу времени, расходуемого на обмен и сопоставление таких файлов.
Каждый раздел проекта, будь то архитектура, конструкции или инженерные сети, изначально интегрирован в общий проект.
Работа идет по графику и без ошибок.

СТАДИИ

Еще одним достоинством технологии является возможность поэтапной разработки и выдачи проектной документации. Вы можете заказать эскизную часть, оценить на ее основе затраты и выбрать подрядчика. Далее, убедившись в соответствии бюджета Вашим возможностям, заказать архитектурный раздел с подбором фасадных и интерьерных решений и сформировать полную ведомость общестроительных материалов. После этого, при непосредственном участии и контроле со стороны будущего подрядчика, мы подготовим рабочую документацию по конструкторской части.

И далее, например, через полгода, когда уже будет готова "коробка" дома, Вы сможете вернуться и заказать инженерные разделы.

Узкая специализация

Заказывая проект, Вы можете быть уверены в нашей объективности. Мы не строительная компания, не участвуем в стройке или закупках. У нас нет и не может быть искушения закладывать в проект материалы, исходя из их маржинальности. Мы лишены коммерческой заинтересованности в завышении количества материалов и работ.
Создавая проект Вашего будущего дома, мы опираемся только на Ваши пожелания, собственные знания и опыт, строительные нормы и правила.

ВЕДУЩИЙ ИНЖЕНЕР
ДМИТРИЙ АКСЕНОВ

  • Главный инженер проектов и действующий проектировщик с многолетним опытом использований BIM-технологий в проектировании и строительстве ИЖС.
  • Международная практика в Германии и Норвегии.
  • Преподаватель REVIT.
опыта работы
13 лет
опыта преподавания
5 лет
СТОИМОСТЬ РАБОТ
АРХИТЕКТУРНЫЙ РАЗДЕЛ (АР)
от 1500 р/м2
АРХИТЕКТУРНЫЙ РАЗДЕЛ (АР)
КОНСТРУКТИВНЫЙ РАЗДЕЛ (КР)
от 950 р/м2
КОНСТРУКТИВНЫЙ РАЗДЕЛ (КР)
от 750 р/м2
БОЛЬШЕ ИНФОРМАЦИИ О НАШЕЙ РАБОТЕ
Можно посмотреть на YouTube канале
ОСТАЛСЯ ВОПРОС?
Свяжитесь удобным способом
Подписывайтесь, тут много полезной информации
© Все права защищены.

Аксенова Елена Сергеевна
ИНН 781696633608
Made on
Tilda